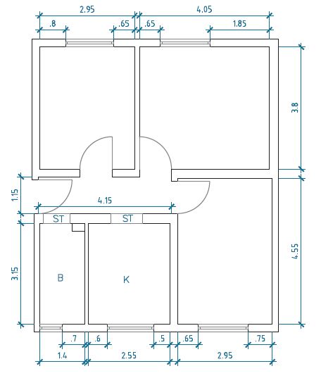
Franz-Schubert-Str. 19, Pirna-Südvorstadt
2-Raum-Wohnung im Erdgeschoss links
voraussichtlich verfügbar ab: 01.12.2025
Wohnfläche: ca. 43,77 m²
Ausstattung: Küche mit Fenster, Bad mit Badewanne und Fenster, CV-Bodenbelag im Laminatdekor in allen Wohnräumen und der Küche, TV-Anschluss über hauseigene SAT-Anlage, Zentralheizung: Erdgas
Energieausweis: Befreiung nach §2 Nr. 3a EnEV
Lage: Arztpraxen im Wohngebiet, Einkaufsmöglichkeiten, Kindergarten und Schule in der näheren Umgebung, Bushaltestelle fußläufig erreichbar
| Kaltmiete: | 280,00 €/Monat |
| BK-Vorauszahlung: | 74,00 €/Monat |
| HK-Vorauszahlung: | 79,00 €/Monat |
| Gesamtmiete: | 433,00 €/Monat |
Genossenschaftsanteile: 480,00 €, Eintrittsgeld: einmalig 80,00 €
Der Grundriss ist ein Beispielgrundriss. Türöffnungen oder die Anordnung der Sanitärgegenstände kann abweichen. Die Wohnung wird unmöbliert vermietet. Alle Maßangaben sind ca-Angaben und in der Wohnung zu überprüfen.
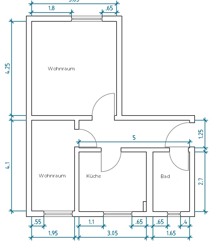
Franz-Schubert-Str. 5, Pirna-Südvorstadt
2-Raum-Wohnung im 1. Obergeschoss links
voraussichtlich verfügbar ab: 01.01.2026
Wohnfläche: ca. 47,90 m²
Ausstattung: Küche mit Fenster, Bad mit Dusche und Fenster, CV-Bodenbelag in allen Wohnräumen, TV-Anschluss über SAT-Anlage, Zentralheizung: Erdgas
Energieausweis: Befreiung nach § 2 Nr. 3a EnEV
Lage: Arztpraxen im Wohngebiet, Einkaufsmöglichkeiten, Kindergarten und Schule in der näheren Umgebung, Bushaltestelle fußläufig erreichbar
| Kaltmiete: | 311,00 €/Monat |
| BK-Vorauszahlung: | 81,00 €/Monat |
| HK-Vorauszahlung: | 86,00 €/Monat |
| Gesamtmiete: | 478,00 €/Monat |
Genossenschaftsanteile: 480,00 €, Eintrittsgeld: einmalig 80,00 €
Der Grundriss ist ein Beispielgrundriss. Türöffnungen oder die Anordnung der Sanitärgegenstände kann abweichen. Die Wohnung wird unmöbliert übergeben. Alle Maßangaben sind ca-Angaben und in der Wohnung zu überprüfen.
Rottwerndorfer Str. 81, Pirna-Südvorstadt
3-Raum-Wohnung im 1. Obergeschoss rechts
Wohnfläche: ca. 59,1 m²
Ausstattung: Küche mit Fenster, Bad mit Badewanne und Fenster, CV-Bodenbelag im Laminatdekor in allen Wohnräumen, TV-Anschluss über SAT-Anlage, Zentralheizung: Erdgas.
Energieausweis: Befreiung nach §2 Nr. 3a EnEV
Lage: Arztpraxen im Wohngebiet, Einkaufsmöglichkeiten, Kindergarten und Schule in der näheren Umgebung, Bushaltestelle fußläufig erreichbar
| Kaltmiete: | 378,00 €/Monat |
| BK-Vorauszahlung: | 100,00 €/Monat |
| HK-Vorauszahlung: | 106,00 €/Monat |
| Gesamtmiete: | 584,00 €/Monat |
Genossenschaftsanteile: 640,00 €, Eintrittsgeld: einmalig 80,00 €
Der Grundriss ist ein Beispielgrundriss. Türöffnungen oder die Anordnung der Sanitärgegenstände kann abweichen. Die Wohnung wird unmöbliert vermietet. Alle Maßangaben sind ca-Angaben und in der Wohnung zu überprüfen.